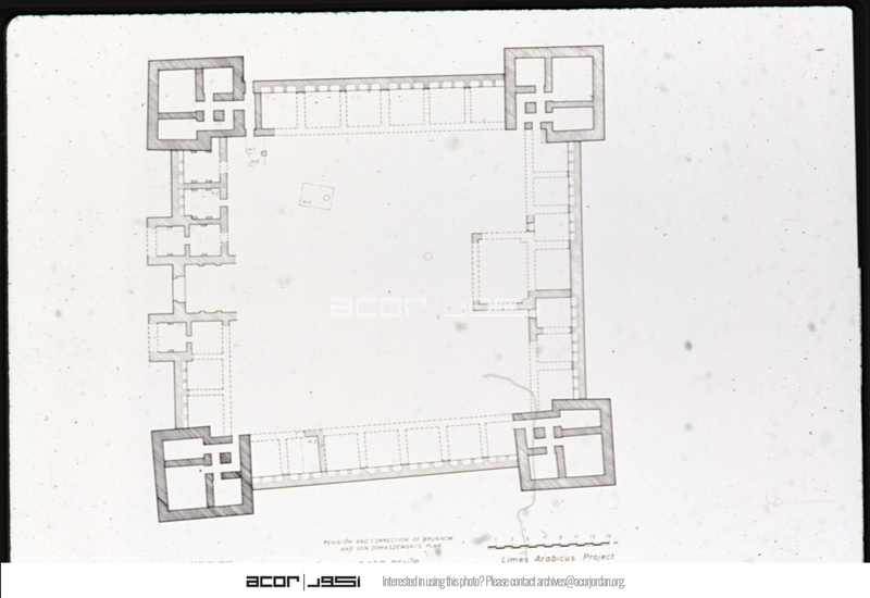
قصر ابشير، مخطط

غرض

عنوان
قصر ابشير، مخطط
نوع
المنشئ
تاريخ
1985
وصف
Photo set from S. Thomas Parker to members of the 1985 Limes Arabicus Project
صيغة
المعرف
RES_J_S_02537
Archaeological Site
Tag
حفريات (علم آثار)، مواقع أثرية، تحصينات، رسومات معمارية
حقوق الوصول
تُتاح هذه الصورة للاستخدام الأكاديمي والبحثي مجانًا. للحصول على نسخة عالية الدقة بدون علامة مائية، يرجى التواصل مع المركز الأمريكي للأبحاث عبر البريد الإلكتروني: archives@acorjordan.org. وقد يتم تطبيق رسوم مقابل معالجة الطلب، ولكن دون فرض أي رسوم ترخيص على الاستخدام الأكاديمي غير التجاري. سوف يُنظر في الطلبات المتعلقة بالاستخدام التجاري لكل حالة على حدة. للاطلاع على الإرشادات الكاملة، يرجى زيارة : http://urls.acorjordan.org/image-requests
StarchiveID
645242
Country
الأردن
مجموعات العناصر
Robert Schick Collection
وسائط
RES_J_S_02537.tif

Request access

To request access please login or contact the publisher!